00375 bytový dům prostějov 03

Novostavba bytového domu se nachází v těsné blízkosti centra Prostějova, na jedné z historických cest – ulici Žeranovské.

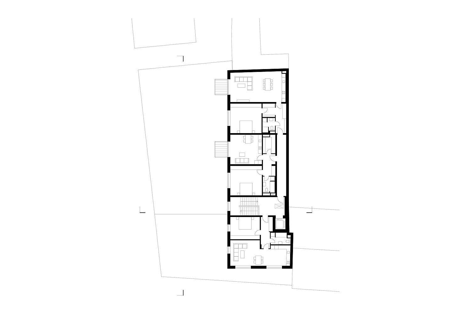
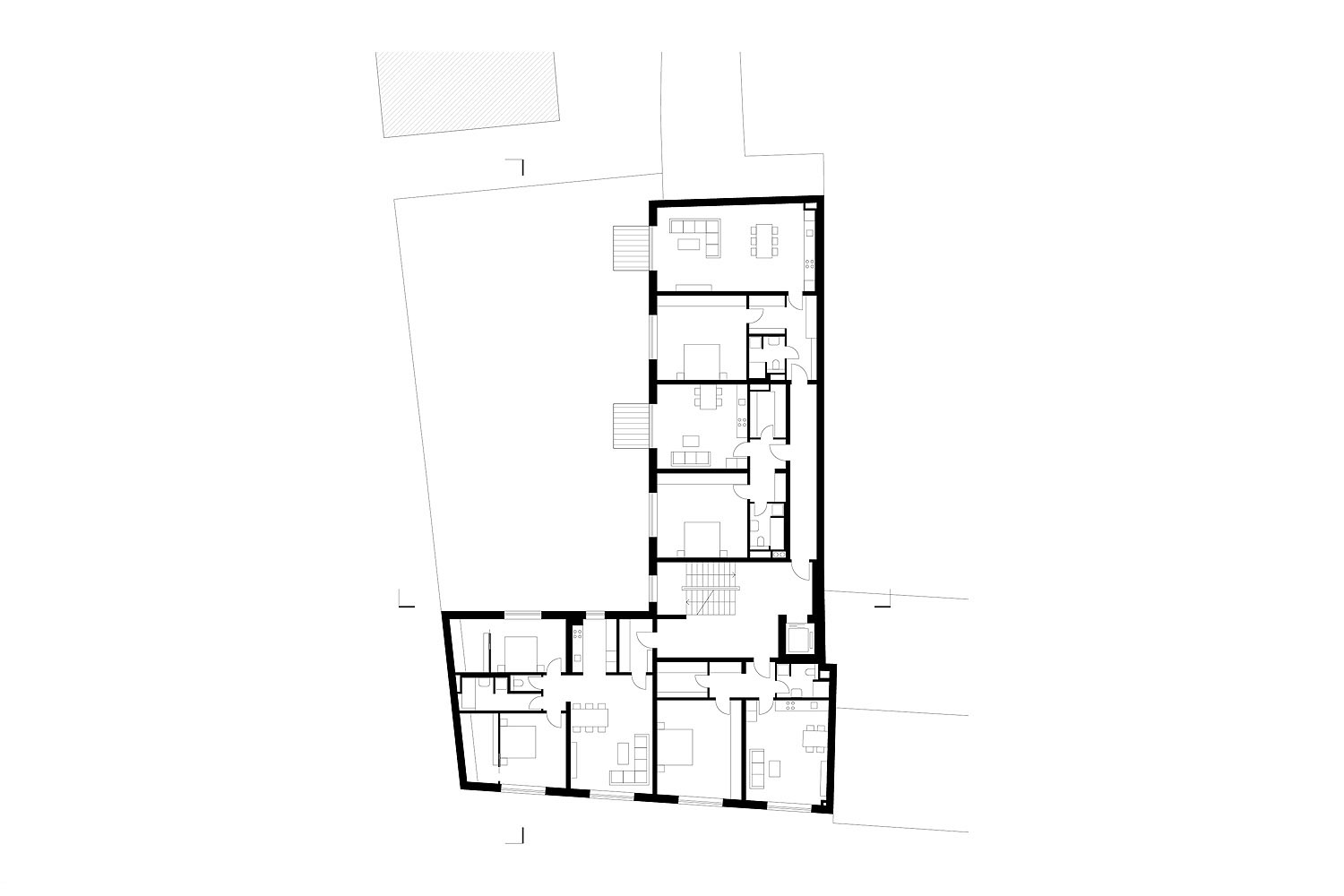
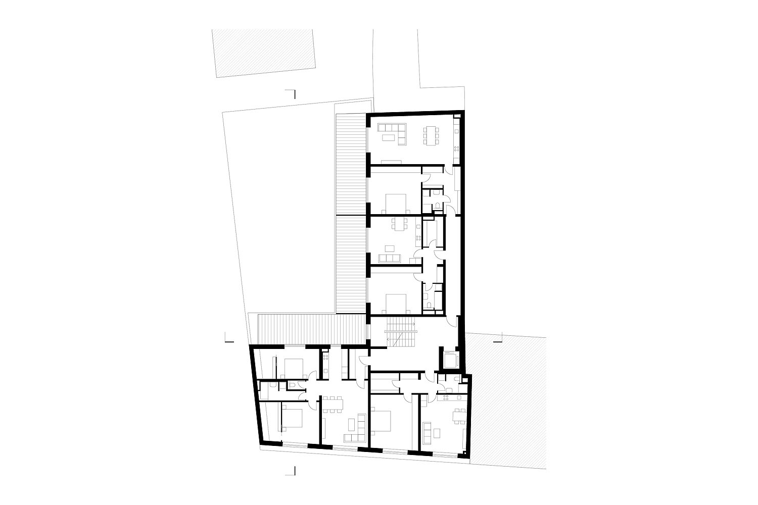
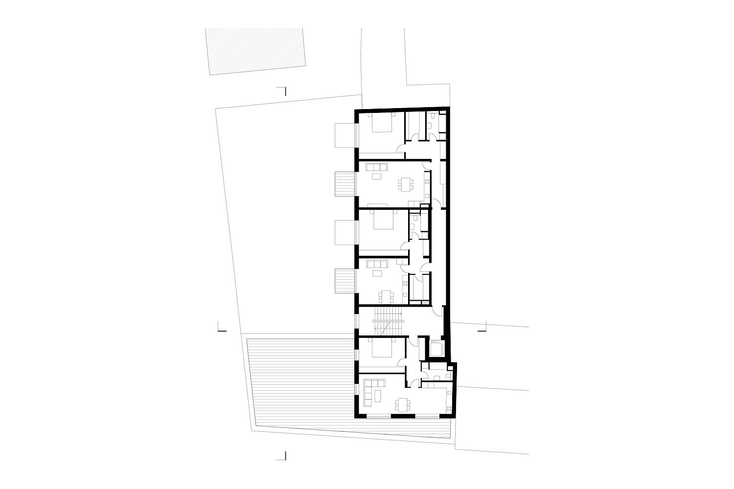
Dům je navržen na půdorysu písmene L a je složen ze dvou částí: třípodlažní hmota s mírně zapuštěnou vstupní částí definuje uliční frontu, kolmá pětipodlažní hmota orientovaná do klidného vnitrobloku ustupuje od uliční čáry a odlehčuje tak celkové měřítko domu. Obě části jsou sjednoceny fasádou z cementovláknitých desek v dvojí barevnosti – přírodní a antracitová. Uliční fasáda je členěna horizontálními římsami a pravidelným rastrem oken, dvorní část je oživena rytmickou hrou velkoryse předsazených balkonů.

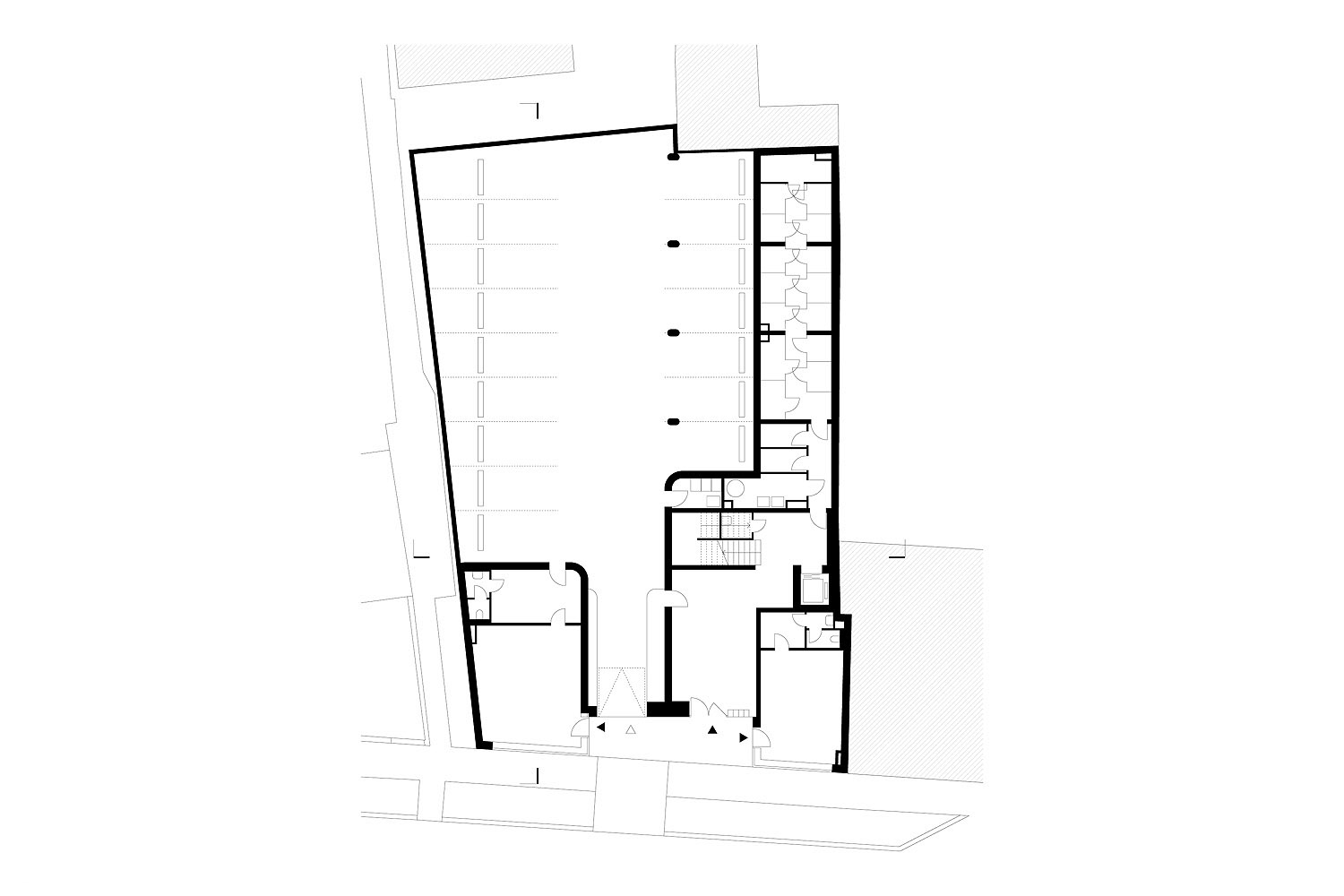
Dům byl původně koncipován jako bydlení pro seniory s 26 upravitelnými jednotkami. V průběhu výstavby však investor změnil náplň a dům byl realizován se 14 nájemními bytovými jednotkami o velikostech 2 + kk a 3 + kk, které jsou umístěny v 2. až 5. NP a jsou přístupné ze společné schodišťové haly s výtahem. Většina bytů je doplněna balkonem, střecha nad uliční částí domu slouží jako pobytová terasa náležející k bytu ve 4. NP. V přízemí jsou situovány dvě pronajímatelné obchodní jednotky s prosklenými výkladci směrem do ulice a zázemí domu. Nezastavěný prostor vnitrobloku je upraven pro parkování. V návrhu byl kladen důraz na řešení vstupních prostor, které jsou sice prostorově skromné, ale díky použití zrcadlového podhledu vzniká překvapivý optický klam inspirovaný vzpomínkou na pravidelné dětské výlety do Prahy a s nimi spojené návštěvy zrcadlového bludiště na Petříně.

V budoucnu se předpokládá rozšíření bytového domu na sousední parcelu, přičemž oba domy budou provozně i esteticky provázány.

download-solid.svg projektlist ke stažení

Štítky:

 bydlení

místo stavby:
Žeranovská 14, Prostějov, CZ
klient:
ONE V s.r.o.
autoři:
Jiří Knesl, Jakub Kynčl
spolupráce:
Martin Trčka (AD)
fáze projektu:
dokončeno
projekt:
2013–2016
realizace:
2016–2017
plocha pozemku:
790 m2
zastavěná plocha:
696 m2
podlažní plocha:
1 566 m2
obestavěný prostor:
7 260 m3
foto:
Radek Brunecký